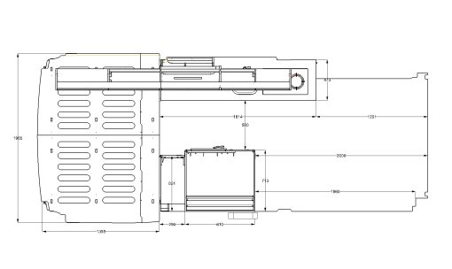
Design 5 – Plan View
Plan view to help you with your conversion. The shower unit shown is our Shower B which has a thin cupboard next to it to move further forward so our shower tray B will fit. The space behind the driver’s seat has a number of possibilities being around 6′ in length. Exact dimensions may change slightly depending on the options chosen and design updates.
DESIGN 5 LAYOUT FOR THE SPRINTER VAN, THERE ARE A NUMBER OF OPTIONS ON SOME OF THE PRODUCTS.
Below is a list of furniture components to create Design 5
The prices are based upon Verde Pastel units with bamboo worktop and table , please note the prices may vary slightly from the date this list was created ( 30/11/2025 ) and the options chosen ie finish , led lights etc…
LOCKERS
Locker B3 – 1770mm Sprinter (D5) — £467.00
https://www.evomotiondesign.co.uk/product/locker-b-1770mm-sprinter-d5/
Locker P – 2725mm Sprinter LWB (D5) — £814.00
https://www.evomotiondesign.co.uk/product/locker-2725mm-d5/
Locker (D) – 1200mm Sprinter (D1 + D5) High Level — £431.00
https://www.evomotiondesign.co.uk/product/sprinter-high-level-locker-d-2006-2017/
Thin Cupboard – Sprinter/Crafter 2006–2017 (524mm wide for D5.1 layout) — £632.00
https://www.evomotiondesign.co.uk/product/thin-cupboard-merc-sprinter-or-vw-crafter-2006-2017-524mm-wide-for-d5-1-layout/
Over-Cab Locker (2006–2017) — £434.00
https://www.evomotiondesign.co.uk/product/over-cab-locker/
PANELS, COVERS & TRIM
Sliding Door Cable Cover + LED Light (D4) – Sprinter LWB 2006+ — £226.00
https://www.evomotiondesign.co.uk/product/sliding-door-cable-cover-led-light-2006-2017-lwb/
LWB High Roof Panels – Sprinter 2006+ & Crafter 2006–2017 — £195.00
https://www.evomotiondesign.co.uk/product/lwb-high-roof-panels-sprinter-crafter-pre-2017/
Rear Door Ply Panels – Sprinter/Crafter — £90.00
https://www.evomotiondesign.co.uk/product/rear-door-ply-panels-old-vw-crafter-before-2017/
Pillar Covers – Sprinter/Crafter — £54.00
https://www.evomotiondesign.co.uk/product/pillar-covers-sprinter-crafter-till-2017/
KITCHEN PODS, UNITS & TABLES
EVO V8 XL + Oven – Large Vans Side Door Pod (Extended) — £1,603.00
https://www.evomotiondesign.co.uk/product/evo-v8-xl-oven-large-vans-side-door-kitchen-pod-extended/
SHOWER & TOILET
Shower Toilet Cubicle B — £1,630.00
https://www.evomotiondesign.co.uk/product/shower-b-crafter-man-tge/
BED SYSTEM & STORAGE
Rear Bed Platform – Sprinter/Crafter — £384.00
https://www.evomotiondesign.co.uk/product/rear-bed-platform-sprinter-til-crafter-2006-2017-mwb/
Under Platform Bed Storage (D1.1) – Sprinter/Crafter — £964.00
https://www.evomotiondesign.co.uk/product/under-platform-bed-storage-d-1-1-sprinter-or-crafter-2006-2017-2/
Garage Door Bed Step — £250.00
https://www.evomotiondesign.co.uk/product/garage-door-step/
APPLIANCES
CAN FO5010 Oven & Grill — £468.00
https://www.evomotiondesign.co.uk/product/can-fo5010-campervan-oven-and-grill/
Thetford T2090 / T1090E Compressor Fridge — £869.00
https://www.evomotiondesign.co.uk/product/thtford-t2090-compressor-fridge/
Thetford Topline 922 Hob — £210.00
https://www.evomotiondesign.co.uk/product/thetford-spinflo-topline-922-hob-twin-burner-12v-ignition/
TRUMA Combi 4DE (Diesel + Electric) incl. iNet X — £1,465.00
https://www.evomotiondesign.co.uk/product/truma-combi-4de-diesel-electrical-inet-x-control-panel-second-gen/
GAS SYSTEM
Large Gas Box – 15 kg — £150.00
https://www.evomotiondesign.co.uk/product/metal-gas-box-in-black-large/
FLOOR
Light Weight Insulated Floor – Sprinter/Crafter 2006–2017 LWB — £410.00
https://www.evomotiondesign.co.uk/product/light-weight-insulated-floor-18mm-mercedes-sprinter-or-vw-crafter-2006-2017-long-wheel-base/
TOTAL: £11,746.00 ( Guild price )















